
Rivergate Apartment
Căn hộ tối giản tại Rivergate
BỐI CẢNH
Tọa lạc tại chung cư River Gate, căn hộ có view đầy cảm hứng nhìn ra sông Sài Gòn, một thành phố đầy năng động và trẻ trung. Chủ nhân căn hộ cũng là người một người trẻ, một nhà thiết kế thời trang, cá tính và ưa thích sự ngăn nắp. Yêu cầu thiết kế được đề ra là: một phòng ngủ cho chủ nhà và một phòng cho em gái cùng với không gian chung rộng rãi, tối giản, và tiện nghi.


Ý TƯỞNG
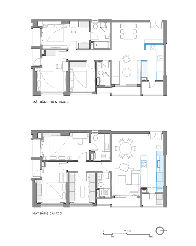
Với diện tích khoảng 100m2, căn hộ bị giới hạn bởi các yêu cầu khắt khe của tòa nhà về việc phá bỏ tường ngăn chia, thay đổi hệ thống kỹ thuật và những hạn chế trong giải pháp thi công hiện hữu. Để dung hòa các yếu tố này, chúng tôi định hướng sự tối giản cụ thể và rõ ràng hơn bằng cách: thiết kế không gian thoáng hơn, rộng hơn với những thủ pháp tinh gọn. Mặc khác, chăm chút kỹ vào chi tiết sử dụng lẫn thẩm mỹ để đạt được sự “tối giản” tự nhiên, tương đồng với tính cách của chủ nhà.


BỐ TRÍ
Để thiết kế trở nên thoáng rộng mà vẫn đáp ứng yêu cầu tòa nhà, chúng tôi đề xuất những tác động nhỏ nhưng đem giá trị cho không gian chung nên việc bỏ bớt được chú trọng hơn thêm vào, việc xê dịch các vị trí được ưu tiên hơn thay đổi toàn diện, làm phẳng các yếu tố lồi lõm gây chia tách không gian, đưa về mảng khối để ngôn ngữ kiến trúc rõ ràng, khúc chiết . Các tác động cụ thể như: bỏ mảng tường ngăn chia bếp hiện trạng, đặt thêm cửa lùa để che loggia, không gian mở ra, liên thông và hướng sự tập trung về trung tâm. Xê dịch vị trí các cửa vào phòng ngủ một cách hợp lý hơn, thay đổi một chút bố trí trong nhà vệ sinh master khiến nó rộng thêm. Bố trí các mảng gương lớn theo sở thích của gia chủ tại các vị trí hợp lý tạo sự mở rộng không gian một cách bất ngờ.
Bên trong tính trật tự, vuông vắn đó, một chiếc bàn tròn phá vỡ sự an toàn trong thiết kế tại vị trí trung tâm của ngôi nhà. Bên cạnh đó, mảng tường sơn mỹ thuật cùng với chiếc kệ sắt mỏng là sự sắp xếp có chủ ý để không gian có được nét cuốn hút nhẹ nhàng.





VẬT LIỆU VÀ MÀU SẮC
Tông màu chủ đạo chỉ gồm ba màu chính: trắng kem, xám và màu gỗ, khiến thiết kế có hòa sắc sáng và đơn giản. Nhưng mặt khác, việc đưa vật liệu kim loại vào những chi tiết nhỏ tạo điểm nhấn mạnh mẽ tại các vị trí quan trọng. Với việc sử dụng vật liệu như vậy, chúng tôi hy vọng cấu trúc thiết kế của mình trở nên chặt chẽ, và cô đọng hơn.





Người viết: Hiền Võ - Dịch và Hiệu đính: Hảo Quách
| Địa điểm | Quận 4, Tp. Hồ Chí Minh |
| Loại công trình | Căn hộ chung cư |
| Diện tích | 100 m2 |
| Thiết kế & Thi công | Km Architecture Office |
| Hình ảnh | Minq Bui |
| Năm | 2023 |

